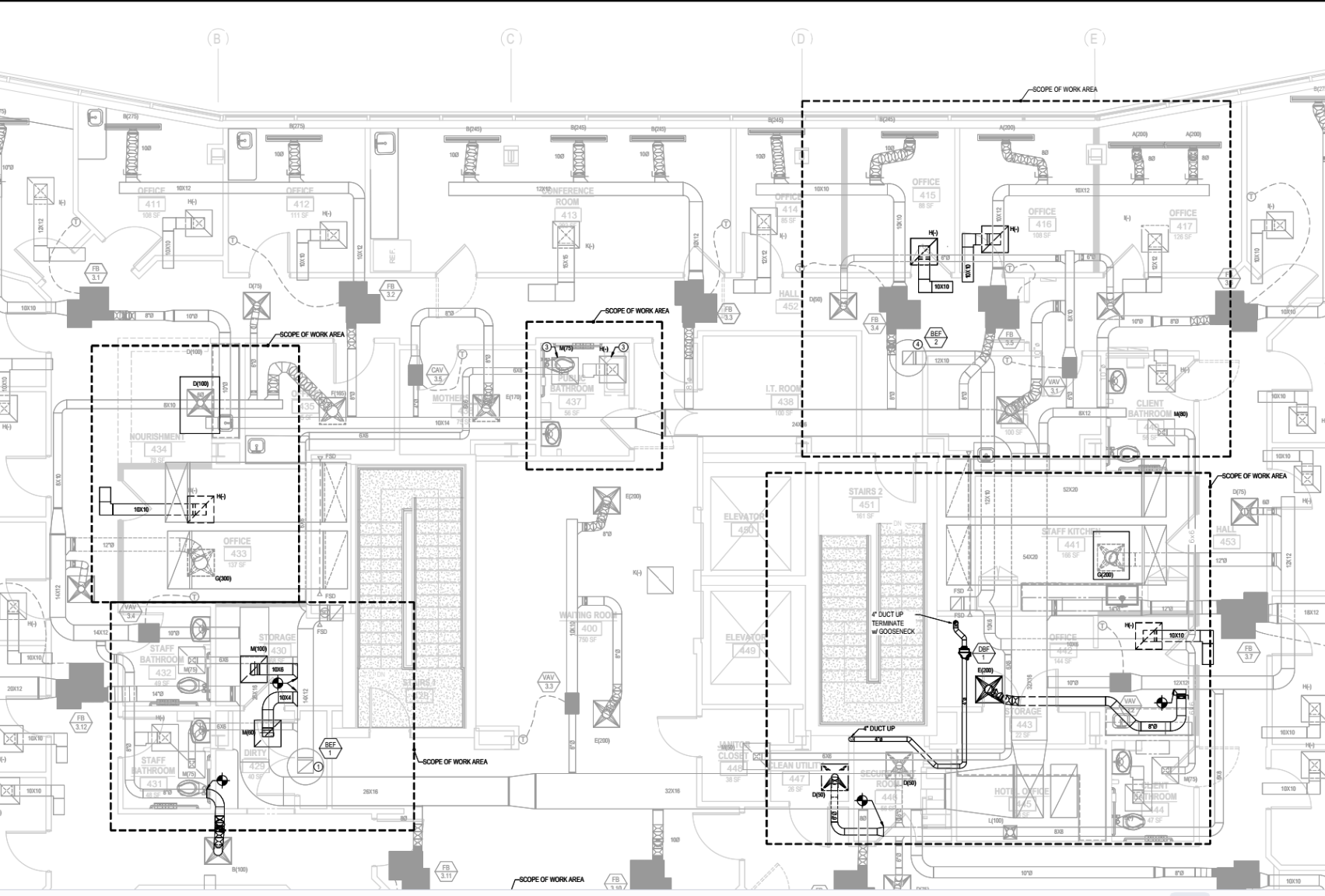
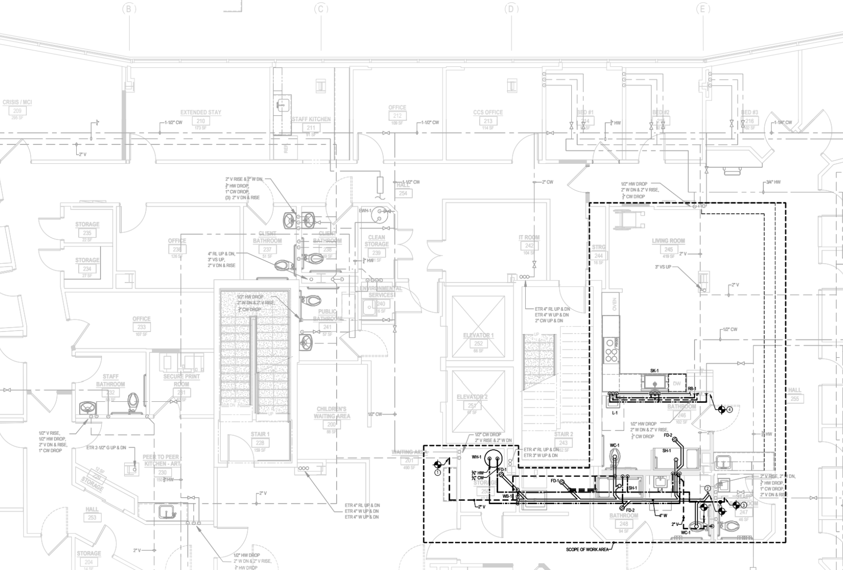
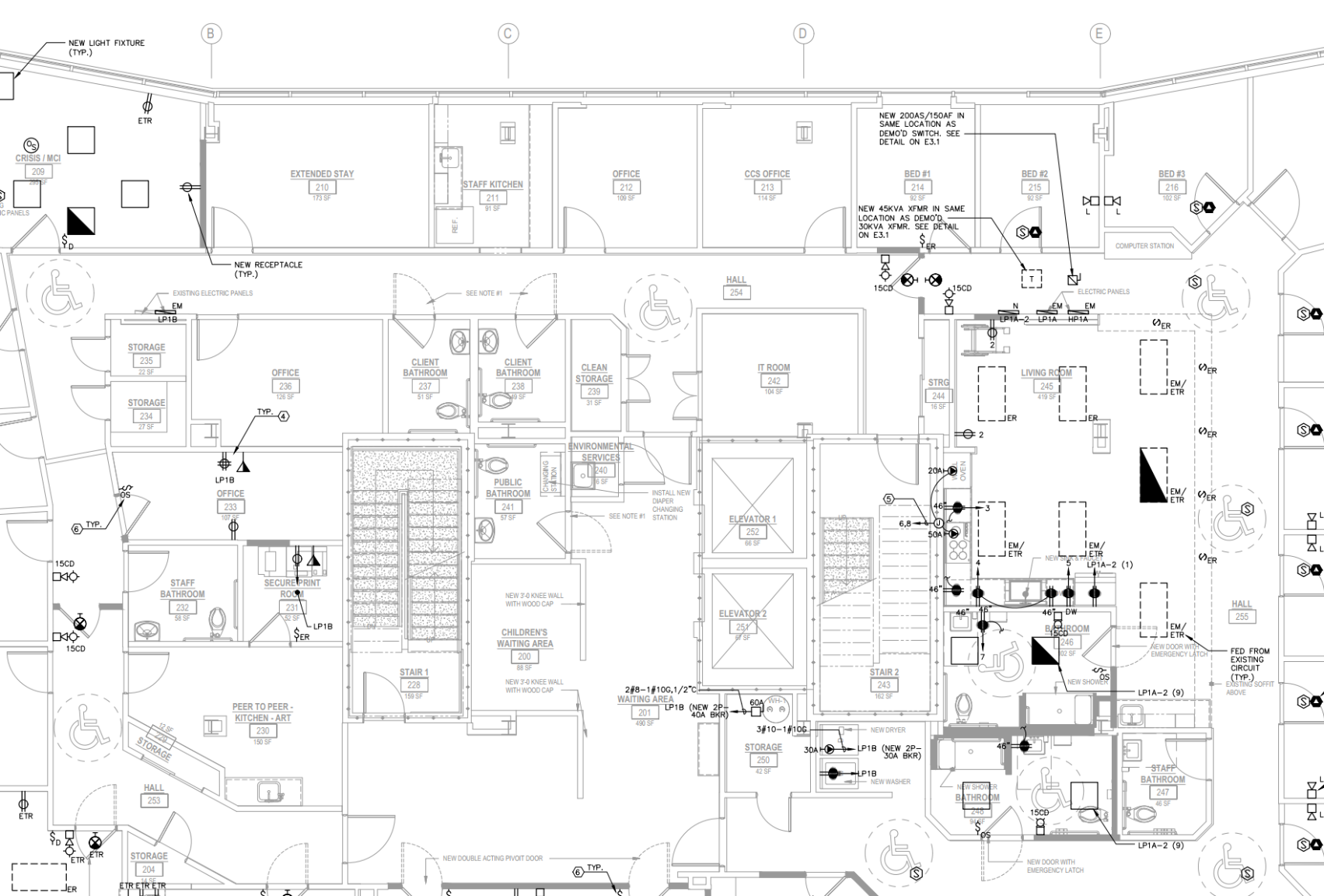
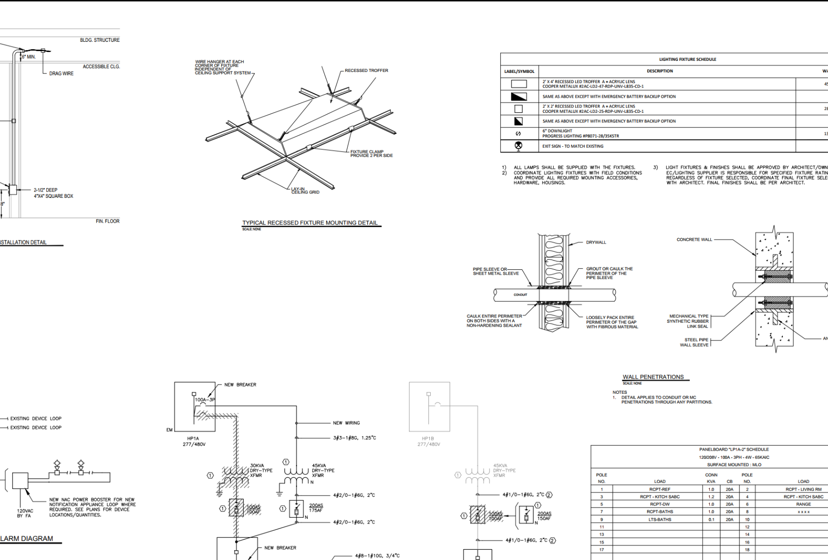
Services Provided
Mechanical, Electrical, Plumbing, Fire Protection. Design & construction administration.
Square Footage
24,000
Description
LTI Engineering provided MEP+FP engineering design services for this healthcare renovation project which included a detailed site survey with laser scan and point cloud data, evaluation of required engineering system modifications and upgrades, permit drawings and construction administration.
Construction
Renovation
Work Samples







